많은 20대, 30대 청년분들을 위해서 동작구의 청년임대주택을 소개해보겠습니다.
1. 서울시 동작구 대방동9길 7 / 16세대.
2. 서울시 동작구 여의대방로62길 22 / 56세대중 6세대 재공급.
SH공사 입주자 모집공고문 및 신청 홈페이지도 아래쪽에 남겨놨으니 참고하시기 바랍니다.

우선 청년임대주택의 주소는 서울시 동작구이며 2개의 지역입니다.
전용면적이 적은편이며 대부분 원룸과 분리형 원룸입니다.
가장 중요한 아래쪽에 서울시 동작구 청년임대주택 보증금과 임대료를 확인하시기 바랍니다.

청년임대주택이라서 무조건 저렴하진 않으며, 생각하신것보다 좀더 높다고 생각하실수도있습니다.
보증금이 원룸 및 분리형원룸이지만 2천만원에서 4천만원까지입니다.
월 임대료는 보증금의 금액에 따라서 다르게 결정됩니다.
보증금을 더 내게되면 월 임대료인 월세를 조금 더 적게낼수있습니다.
그리고 무엇보다도 소득 50%이하와 초과 대상자가 월세 금액이 너무 많이 차이는것이 아닌가 걱정됩니다.
소득 50~70%의 청년의 경우에는 월세가 40만원이 넘으며 이러한경우에는 청년임대주택으로서 매력이 조금은 떨어지는것이 아닌가 생각합니다.

대부분이 원룸 혹은 분리형 원룸입니다.
분리형 원룸의경우에는 아래쪽에도 평면도를 첨부해놨으니 그림을 참조하시기 바랍니다.
1층이나 옥탑방이 아니며, 깨끗한 원룸을 찾고있다면 괜찮을수도 있습니다.
하지만 소득 50%초과 대상자와 50% 이하 대상자간에 격차가 너무 크다고 생각합니다.
그리고 소득 50% 초과 대상자의 경우에는 보증금이 같은지역에 다른 원룸보다 더 많은면도 있다고 생각합니다.
하지만 SH공사에서 믿을만한 임대차계약과 깨끗한 원룸 그리고 옥탑방이나 반지하가 아닌면에서 좋다고 생각합니다.
사회 초년생중에서 (분리형)원룸의 깨끗하고 믿을수있을 임대차를 알아보신다면 괜찮은것 같습니다.

서울시 동작구 청년임대주택 자격 및 조건 표를 정리하였습니다.
우선 각 가구별 월평균 소득이 50%이하인 경우에 임대주택을 추천드립니다.
50% 초과할경우에는 청년임대주택인데도 불구하고 그렇게까지 싼 월 임대료와 보증금이라는 생각이 들지 않습니다.
서울시 동작구 청년임대주택 신청 자격중 자산 조건을 살펴보시기 바랍니다.
총 자산가액이 2억1천5백만원 이하이어야합니다.
자동차의 경우에는 3,496만원 이하의 자동차를 소유해야합니다.

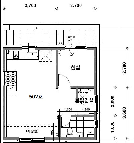
청년임대주택 평면도중에서 그나마 큰 편인 방의 평면도인데요.
일반 원룸보다는 이런 분리형 원룸을 추천드립니다.
하지만 위에서 알려드린 각 호실 평면도별 보증금 및 월세(임대료)가 본인이 생각하는 수준에 맞는지 살펴보시기 바랍니다.
청년임대주택 신청시 가장 중요하게 살펴봐야하는것은 가격입니다.
월 임대료인 월세와 보증금이 적정수준인가를 지원전에 심사숙고해서 지원하여야합니다.
왜냐하면 임대차계약은 일반적으로는 최소 1년 이상을 유지해야하기 때문입니다.

서울시 동작구 청년임대주택 신청시 제출해야하는 서류로는 다음과 같습니다.
1. 동작구 청년 맞춤형 공공주택 입주신청서.
2. 개인정보 수집 이용 및 제3자 제공동의사.
3. 서류 대출대상자의 경우.
1) 금융정보등 제공동의서.
2) 자산보유사실 확인사.
3) 입학예정자의 증명서 서류제출각서.
4) 보호종료 아동관련 제출서류.
서울시 동작구 청년임대주택 신청 및 공급일정은 표로 아래 정리해놨으니 참고하시기 바랍니다.
신청접수는 7월12일부터 14일가지이며, 서류심사 대상자 발표일이느 7월23일입니다.
계약체결은 2021년 11월1일부터 11월4일까지이며 입주는 2021년 11월15일부터 가능하다고나와있습니다.

더 궁금하신 사항은 동작구청 주택과(02-820-9347)에 전화해서 문의해 보시기바랍니다.
다시한번 말씀드리지만 청년임대주택은 장단점이 있는 임대차계약이라고 생각합니다.
반드시 본인이 생각하는 적정수준의 임대료와 보증금인지 다시한번 확인해보시기 바랍니다.
SH공사 홈페이지, 동작구 청년주택 입주자모집공고문 확인하세요.
그리고 일반적으로 1년이상은 지낼공간이기때문에 원룸이 너무 작은지는 아닌지 체크해보시기 바랍니다.
저처럼 좁은 공간에 있으면 스트레스를받는 성격의 경우에는 발품을 팔아서 싸고 좋은 주변지역에 투룸으로 가는것도 좋은 선택이라고 생각합니다.
서울시 청년수당 자격 사용처 신청기간
매월 50만원씩 6개월간 지급하는 서울시 청년수당입니다. 서울시 청년수당은 2021.2.23.화요일부터 신청기간입니다. 청년수당 지원금을 지급받아서 아래 사용처에서 사용하시기 바랍니다. 6개월동
study-up.kr
이렇게 오늘은 서울시 동작구에 원룸이나 분리형원룸을 찾고있는 청년분들을 위해서 동작구 청년임대주택을 살펴봤습니다.
개인적으로 청년분들이라도 원룸보다는 좀 넓은 공간에서 지내보시기를 추천드리는데요.
2021 청년 주거급여 분리지급 신청자격 및 방법
2021년 30세 미만의 자취하는 저소득 청년들은 주거급여를 받을수있습니다. 이전에는 부모와 떨어져서 살아도 주거급여를 받기 힘들었어요. 왜냐하면 부모와 같은 세대에 포함되서 부모님 세대
haprics.com
좁은 공간이 주는 스트레스가 생각보다 심할수도 있기때문입니다.
신중하게 잘 선택하셔서 지원하시기 바랍니다.
또한 2021년부터 달라지는 청년 주거급여 분리지급시 신청 지원금에 대해서 위에 정리해놨으니 해당자는 참고하시기 바랍니다.
그리고 서울시에 거주하는 청년들을 대상으로 지급하는 청년수당 또한 자격 및 조건을 참고하셔서 해당시에 꼭 지원해서 지원금을 지급받으시기 바랍니다.