이번년도에 서울에 남은 공공분양 일정중에서 가장 인기있는 청약중에는 위례 a1-5, a1-12 블럭이 아닐까 싶습니다.
1. 위례 a1-5 : 1,282세대 공급하며
2. 위례 a1-12 : 394세대 가구수 지원할 예정입니다.
위례 a1-5 공공분양 일정은 2020년 11월에 진행될 예정힙니다.
SH 서울주택도시공사 사업지구 현황 "위례지구 5블럭"에서 자료 참조하여 작성하였습니다.
첫번쨰. 위례 A1-5 평수별 공급 세대수는?
두번쨰. 전매제한, 의무거주기간, 재당청제한를 꼭 체크해야하는 이유?
세번째. 위례 a1-5 분양가 예상과 자금이 없는분들을 위한 꿀팁 하나!
네번째. 위례 a1-5 평면도, 평수별 확인..
다섯번째. 위례 a1-5 위치와 조감도 등 청약신청시 꼭 확인해야하는 중요한 사항들을 아래에서 확인해보겠습니다.

그리고 공공분양 특별공급 전형별 종류와 세대수 분석을 해보고 청약 신청시 주의해야하는 꿀팁들을 아래에서 살펴보겠습니다.
위례 A1-5 공공분양 평수별 공급물량은?
우선 SH 서울주택도시공사에서 시행사로 진행하는 위례 a1-5 공공분양 아파트의 평수별 공급 물량을 살펴보겠습니다.
위례 공공분양 아파트의 주소는 a1-5 의 주소는 서울시 송파구 거여동 위례신도시 A1-5블럭이며 단지규모는 25층으로 18개동으로 이루어져있습니다.
1. 66m(제곱미터) : 183세대
2. 70m : 148세대
3. 75m : 223세대
4. 80m : 332세대
5. 84m : 396세대의 공공분양으로 총 1,282가구에게 공공분양으로 주택을 공급할 예정입니다.

위례신도시 a1-5와 a1-12블럭은 위치적으로 가까인 인접해있으며 주소는 서울 송파구이기 때문에 이번 청약 경잴률은 정말 높지않을까 예측됩니다. 계속해서 1,282세대의 많은 공공분양 물량을 공급하는 위례 a1-5 분양가 전망과 예상 분양가 그리고 청약 신청시 주의해야하는 사항을 살펴보겠습니다.
전매제한, 재당첨제한, 의무거주기간은 얼마나?
최근 공공분양을한 경기도 하님시의 위례신도시 a3-3a 블럭의 경우, 전매제한은 10년과 의무거주기간 및 재당첨제한은 각각 10년이였습니다.
1. 전매제한기간 10년이 있으면 주의해야할 사항은 실거주 목적으로 청약을 지원하셔야한다는겁니다.
2. 재당첨제한 10년은 무분별한 청약 무작위지원을 방지하여 정말 내집마련이 필요한 무주택자에게 기회를 평등하게 줄수있습니다.
3. 의무거주기간 5년의 경우, 민간분양 아파트는 없는 경우가 있습니다. 하지만 위례신도시와 같은 지역의 공공분양 아파트는 대부분 입주가능일로부터 의무거주기간 5년이 적용됩니다.

아마도 위례 a1-5블럭도 a3-3a처럼 전매제한과 의무거주기간이 10년, 5년이 적용될듯합니다. 그렇다면 꼭 주의하셔야하는 사항이 있습니다.
1. 청약 당첨후에 입주를 해야해서 전세권 설정이 어렵기 때문에 실거주를 해야합니다.
2. 실거주를 해야하기때문에 아파트 중도금, 잔금을 입금할정도의 경제적 여유가 있어야합니다.
위례 a1-5 분양가 전망, 그리고 꿀팁 하나
위례신도시 a1-5은 분양가상한제가 적용되고 전매제한 아파트단지이기 때문에 낮은 분양가를 예상합니다.
최근에 분양된 위례신도시 공공분양중에서 a3-3a블럭의 아파트 분양가를 살펴보겠습니다.
위례신도시 공공분양 아파트 a3-3a블럭은 공급면적 기준으로 82m(제곱미터)는 약 5억원으로 분양되었습니다. 그리고 71m(공급면적)의 경우 4억 3,940만원이였습니다.
정확한 위례 a1-5 분양가는 추후에 11월에 공고 예정인 위례 a1-5 청약 입주자 모집공고가 올라오면 꼭 재확인해보시고 청약이 당첨되고나서 잔금과 중도금 등을 치룰수있는 자금사정이 되는지 꼭 확인하세요.

3기 신도시 사전청약은 내년 7월부터 분양 일정이 있습니다. 그렇기 때문에 자금이 없는데 너무 무리해서 내집마련을 위해서 아파트분양에 청약을 지원하실 필요가 없다고 생각합니다.
자금이 없으면 돈을 모아서 내년 3기 신도시 사전청약을 준비
위례신도시도 교육환경과 첨단 인프라시설, 상권 등 종합적으로 고려하면 정말 살기좋은 동네입니다. 그리고 이번 위례 a1-5는 분양가 상항제가 적용되고 SH 서울주택도시공사에서 시행하는 공공분양 아파트이기 때문에 매력적인 분양가일겁니다.
그래도 4~5억이 넘는 돈은 경제사정이 여유롭지 못한 무주택자에게는 부담없는 분양가는 아닙니다. 물론 중도금, 잔금 모두가 유동자금으로 보유한 자산으로 충당하지는 않고 은행에서 지원을 받을겁니다. 위례신도시 공공분양은 대부분 전매제한 10년과 의무거주기간 5년이 적용되어서 청약 당첨후에 입주하고 5년을 살아야합니다. 아파트 전세권 설정 혹은 매매로 잔금을 입금하여 내집마련을 하실수없습니다.

3기 신도시 사전청약은 내년 7월에 분양이 시작됩니다. 수도권에 30만 세대수를 지원할 예정이기때문에 많은 공공분양 및 임대, 민간분양 아파트가 분양될겁니다.
1.신혼부부특별공급 : 결혼후 7년이내, 한부모가정도 지원하실수있습니다.
2.생애최초특별공급 : 무주택가점 기간이 긴 청약 당첨 확률이 높은 중년층 이상분들이 청약으로 많이 지원하십니다.
3. 다자녀가구특별공급 : 태아를 포함해서 3명이상 자녀의 가구의 세대주는 지원이 가능합니다.
이외에도 노부모부양특별공급, 기관추천특별공급 등으로 다양한 청약 전형이 있습니다.
위례신도시 a1-5 평수별 평면도 살펴보기
위례 a1-5블럭 공공분양 아파트 내부 평면도를 살펴보겠습니다. 25층, 18개동의 아파트 단지로 주차는 각 세대당 1.27대를 넉넉하게 할수있으며 시공사는 SH공사입니다.
공공분양의 경우 민간분양 아파트와 다르게 최대평수가 84m(제곱미터)로 제한되어있기때문에 가장 많은 경쟁이 몰리는 84m 평수로 청약을 많이 지원하십니다. 66~84m중에서 가장 공급물량이 많은 크기는 84m이며 396세대를 지원하고 그 다음으로 80m은 332세대를 분양합니다. 66m은 가장 작은 분양 평수이며 183세대를 분양합니다.

가장 작은 평수이지만 방이 3개입니다. 화장실도 2개이며 있을건 다 있습니다. 발코니도 있고 신혼부부가 살기에 작지는 않을듯합니다.

위례 a-5 70A 평면도는 보시는 것처럼 66A형보다 조금 더 커보입니다. 화장실 2개, 침실3개, 발코니가 있습니다. 안방에 드레스룸은 없지만 작은 공간이 실용적으로 있습니다.

위례 a1-5 평면도중 75B형은 딱 분양되는 아파트중에서 중간 사이즈이며, 주방 및 거실이 넓직해졌습니다. 발코니와 안방에 화장실과 실용적인 작은공간이 있고, 침실 3개가 있습니다.

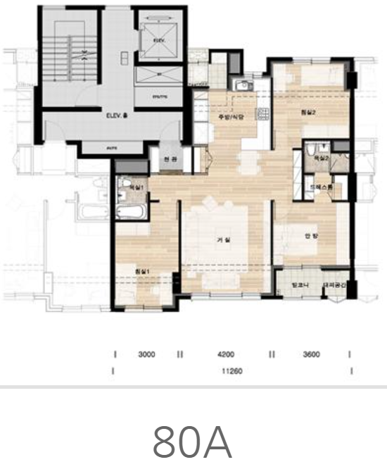
위례신도시 a1-5 평면도를 살펴보면 이제 드레스룸이 있습니다. 제법 커보이며 공공분양 80A형은 84m 사이즈와 거의 비슷해보입니다. 주방과 거실사이에 여유공간이 있고 각 침실이 떨어져있어서 옆에 소음에 방지에 좋아보입니다.

마지막으로 공공분양 아파트중에서 가장 큰 평수인 위례 a1-5 평면도 84형을 살펴보면 드레스룸은 기본이고 거실과 주방도 사이즈가 커보입니다. 공용부분과 주거 전용공간이 적당히 잘 되어있어서 실평수가 커보입니다.
위례신도시 a1-5 단지 조감도, 참고사항들
이렇게 위례 a1-5블럭에서 SH서울주택도시공사에서 시행하는 공공분양 아파트 일정(11월)과 예상 분양가와 평면도(위에서 확인), 꼭 확인해야할 사항들을 대해서 알아봤습니다.
이 포스팅에서 위에서 다뤄본것들은 다음과 같습니다.
1. 위례 a1-5 공급물량은?
2. 위례 a1-5 평수별 평면도와 조감도
3. 공공분양 특별공급 전형별 신청 자격 체크
4. 위례 a1-5 예상 분양가와 참고해야할 꿀팁들
끝으로 다시한번 전매제한 10년, 의무거주기간 5년, 재당첨제한이 10년이 적용되면 공공분양 당첨후에 입주가능일로부터 5년을 거주해야합니다. 바로 아파트 전세권 설정을 통해서 잔금을 치룰수없기때문에 꼭 중도금과 잔금을 입금할수있는지, 은행에서 대출을 어느정도 받을수있는지 입주자 모집공고에서 확인을 하셔야합니다.

3기 신도시는 경기도 하남, 과천, 고양, 부천, 남양주신도시가 있으면 인천신도시도 계양지역이 포함됩니다. 그래서 아직 여유자금이 없다면 내년에 있을 3기 신도시 공공분양 아파트 청약에 지원하는것도 꿀팁입니다.
3기 신도시 사전청약 일정과 특별공급 전형별 자격에 대해서 아래에서 살펴보겠습니다.
3기 신도시 사전청약 자격, 분양시기 일정
무주택자분들 중에서 수도권에 아파트 내집마련을 꿈꾸시는분들은 꼭 3기 신도시 사전청약과 분양 시기, 일정 계획을 확인해보시기 바랍니다. 왜냐하면 3기 신도시는 경기도 하남, 과천, 남양주
haprics.com
서울 도심에서 30분거리에 위치한 수도권에 아파트 내집마련을 하실수있는 3기 신도시 사전청약은 내년 2021년 7월부터 접수 지원하며, 분양시기 및 일정이 아직 시간이 남은것같지만 해당지역 거주기간 2년 자격조건을 충족해야하는 아파트 분양이 대부분이기때문에 수도권 이외에 지역에사시는 분들은 이사준비 등을 미리하시는것도 요령일수있습니다.