부동산 일을하다보면 평면도를 그릴일이 많은데요.
우선 평면도 그리는 무료 프로그램은 5가지 정도 있습니다.
1. 스케치업(sketchup.com/ko) : 30일 무료.
2. 플로어 플래너(floorplanner.com) : 가장 추천.
3. 홈 스타일러(homestyler.com) : 평균
4. 코비(house.kovi.com) : 무난
5. 스위트홈 3D(sweethome3d.com) : 보통.

웹에서 바로 평면도를 그리기때문에 프로그램 설치할 필요도 없습니다.
설치 필요없이 웹에서 그리세요
1. 프로그램을 설치할 필요가 없이 플로어플래너에서 바로 평면도를 그리면됩니다.
2. 체험판 30일, 한달이용 같은게 없어서 좋습니다.
3. 무료로 이렇게 좋은 평면도 그리는 툴을 사용할수있다는점이 가능 큰 장점이죠.
4. 2D, 3D가 호환되기떄문에 정말 그리기 편하고 무료 툴이 굉장히 좋습니다.

5. 초보자도 사용하기에 정말 편합니다.
6. 2D로 그리면 3D로도 평면도를 기본적으로 자동구현됩니다.
2022년 3기 신도시 사전청약 일정
3기 신도시 4차 사전청약이 현재 진행중인데요. 2022년 3기 신도시 5차 사전청약 일정과 지역, 공급물량을 알아보겠습니다. 우선 2022년 2기와 3기 신도시 사전청약 일정과 공급물량표를 확인하세요
haprics.com
7. 고퀄리티 평면도는 쉽고 빠르게 그릴수있다는 편의성이 최대 장점입니다.
8. 무료이면서 이정도 기능들이 들어간 평면도 그리는 프로그램이 사실상 거의 없습니다.
2022년 취업지원금 50만원 신청방법(알바 가능)
2022년 고용노동부 취업지원금은 2종류가 있습니다. 1유형 : 구직촉진수당 : 월50만원씩 최대 6개월간 지급. 2유형 : 취업활동비용 : 월 284,000원씩 최대 6개월간 지원. 국민취업지원제도이라고하는
haprics.com
9. 캐쥬얼 무료 버전을 이용해서 평면도를 그릴수있습니다.
- 추가적인 기능이나 편집이 필요하면 그때가서 업그레이드를 하면됩니다.

개인적으로 플로어 플래너가 가장 사용하기에 좋았고 후기들도 좋았습니다.
플로어플래너 사용방법
1. 플래어플래너 홈페이지(floorplanner.com)에 접속해서 무료 회원가입을 합니다.
2. 새 프로젝트를 실행하면 평면도를 어떻게 그릴지 선택합니다.
3. 기존의 만들어진 평면도 샘플을 불러와서 편하게 편집해서 완성할수도 있습니다.
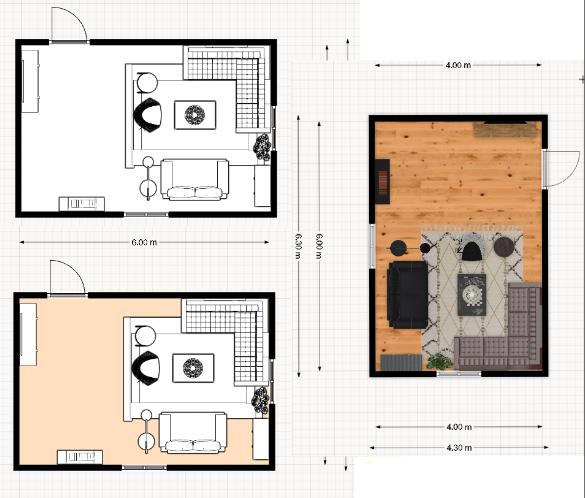
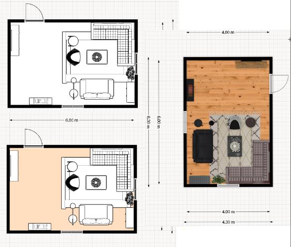
4. 흑백 평면도부터 칼라 3D 평면도까지 모두 구현이 가능합니다.

위에서 보시듯이 평면도를 3D로 볼수가 있습니다.
이러한 기능을 무료로 사용할수있는 프로그램이 많이 없습니다.
1인가구 생애최초 특별공급 추첨 조건
2022년에는 1인가구 미혼자도 생애최초특별공급 청약 추첨이 가능합니다. 이전까지는 기혼자만 생애최초특별공급 청약 신청이 가능했죠. 소득기준도 미반영되기때문에 특별한 조건이 없습니다.
haprics.com
아파트 평면도를 그릴일이 최근에 정말 많았는데요.
플로어 플래너를 진작에 알았으면 개고생을 안했을겁니다.
2022년 신혼부부 특별공급 당첨점수 추첨제 전략
2022년부터 신혼부부 특별공급 청약 전략은 달라져야합니다. 그 이유는 '추첨제 30%'가 생겼기 때문입니다. 자녀수와 소득수준에 상관없이 추첨으로 뽑아서 청약이 당첨됩니다. 따라서 당첨점수 1
haprics.com
다른 평면도 그리는 무료 프로그램들은 정말 불편한게 한둘이 아니였거든요.
어차피 돈드는것도 아니고 저는 평면도만 전문적으로 그리는 사람도 아니기때문에 좋은 프로그램을 알려드렸습니다.
2022년 하반기 공기업 공채 일정
2022년 하빈기 공기업 공채일정을 정리했습니다. 총 151개의 공공기업 연봉부터 모집인원, 채용일정까지 참고하세요. 아래 청년 취업지원금과 정부지원금도 정리했으니 확인하세요. 국가철도공
study-up.kr
유용하게 인터넷에서 편하게 접속해서 평면도를 쉽고 빠르게 그리시기바랍니다.
추가적으로 2022년 하반기 공기업 채용일정과 청년 및 중장년 취업지원금 신청방법도 위에 정리했으니 참고하세요.
또한 1인가구 및 신혼부부 특별공급 아파트 분양에 추첨제로 청약 당첨될수있으며 위 포스팅에 정리했습니다.